量身定制
拒絕模板 定制風格

量身定制
拒絕模板 定制風格

軟裝搭配
細節搭配決定細節

“0增項”
您不增項 絕不加價

環保承諾
材料E0 環保檢測

一站式省心
消防空調軟轉全搞定
一、項目概況
1、建筑物性質、規模
本工程位于上海市寶山區威航路金地智造園L10號樓3樓,為上海愛藝巧食品有限公司車間凈化裝修工程,本工程車間有一層,建筑建筑面積為5207.80平方米,其中凈化車間面積為3726.08平方米,剩余為辦公區域。
2、項目定位
該項目廠房建成后主要生產巧克力等食品生產,因此以十萬級食品廠凈化車間要求來進行建設。
3、設計依據
《采暖通風及空氣調節設計措施》GB50736-2012
《潔凈廠房設計規范》GB50073-2013
《工業企業廠房設計規范》GB12348-90
《建筑設計防火規范》GB50016-2014
《通風與空調工程施工質量驗收規范》GB50243-2016
《潔凈室施工及驗收規范》GB50591-2010
甲方對項目的設計要求、提供的工藝條件以及工藝土建等專業提供的資料
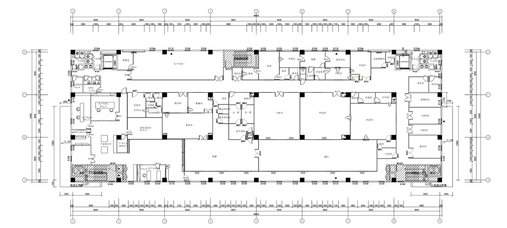
二、平面布置

三、設計施工范圍
1、生產車間潔凈空調系統工程,
2、辦公區普通空調系統工程,
3、潔凈車間內部及普通車間墻板及天花工程,
4、給排水及強電布設工程
5、新風系統工程
6、空壓機設備及相關管道工程,
7、消防改造工程
四、設計參數
室內設計參數
十萬級區域:溫度20—26℃,濕度40—60%,新風量40m/h.人,噪聲≤60;
普通區域:溫度≤26℃,濕度不要求,新風量40m/h.人,噪聲≤65。

五、空調系統
潔凈無塵生產區采用直膨式凈化空調機組空氣處理機組+高效、中效的空調形式,送風量:4000CMH 新風量400CMH,采用上送風側下回風的氣流組織的方式以滿足室內溫度與濕度等要求。
六、風管系統
空調、新風管道用鍍鋅鋼板,材質: 鍍鋅鋼板;形狀: 矩形;規格: D<=800mm;板材厚度: 0.65mm;接口形式: 咬口;
七、螺桿空氣壓縮機系統

1、啟動
螺桿空壓機主機采用星三角轉換空載或變頻軟啟動模式,當主電機在停止狀態時,進氣閥關閉,放空閥開啟,主電機在無負載時以星形啟動,同時斷水電磁閥得電,斷水閥開啟,6~10秒后轉成三角形運行,這時壓縮機主機通過進氣閥上的進氣小孔吸氣并壓縮到水氣桶內,建立了約0.2~0.3MPa的系統初始壓力,使水氣桶內的水經過冷卻器、斷水閥及水過濾器后向主機供水。
2、加載
主電機轉成三角形運行后約5~10秒,控制器使加載電磁閥得電,加載電磁閥打開,放空閥關閉,進氣閥開啟,主機開始負載運行,當水氣桶內壓力超過0.4MPa時,最小壓力閥打開,壓縮機開始向外供氣。

3、卸載—加載
當控制器檢測到系統壓力達到卸載壓力時,控制器使加載電磁閥斷電,這時進氣閥關閉,放空閥開啟,當外部壓力大于水氣桶壓力,最小壓力閥關閉,壓縮機繼續運轉,并通過進氣閥小孔吸氣,壓縮至水氣桶內,放空閥開啟放空,使水氣桶內的壓力保持在0.4MPa,以維持系統的正常運行。這時主電機是空載運行,電流為滿負荷的15%左右。當外部供氣壓力下降至加載壓力時,控制器使加載電磁閥得,放空閥關閉,進氣閥打開,壓縮機加載運行,開始向外供氣,如此循環動作。
4、水氣分離
壓縮機工作時,水氣桶內的水由系統壓力驅動,經冷卻器、水過濾器及斷水閥向主機內噴水,壓縮機排出的是水氣混合物,經水氣桶時,由于氣流產生的離心力及碰撞等作用,使水氣混合物中99.99%以上的水分離沉淀在水氣桶中,殘余的一點點水混合在壓縮空氣中經由最小壓力閥排出水氣桶外。
5、自動補排水
當壓縮機持續進行壓縮及冷卻時,空氣中的水分便凝結累積在水氣桶內,水位上升,若水位高于正常時,自動排水閥開啟,排出多余的水分;當濕度較低(如冬天)或是冷卻器效率較差造成溫度上升,桶內的水氣隨著空氣排出,水位降低,若水位低于正常時,自動補水閥開啟,由壓縮機吸氣側補充水進入水氣桶內。
6、主機運行溫度及冷卻
噴水螺桿機主機的運行溫度應維持在≤環境溫度+20℃,這樣可使潤滑水能得到有效分離,而不會因高溫使水汽化或高溫。當壓縮機一開機時冷卻風扇就得電,壓縮機水得到冷卻,冷卻后的壓縮機水噴至主機內,使主機溫度下降。
7、停機
停機時,壓縮機會先卸載運行15~35秒,當水氣桶壓力下降0.4MPa時,主接觸器斷電,主電機停止,同時斷水電磁閥斷電,斷水閥關閉。


免費量房

獲取案例

免費報價
辦公室裝修公眾號
聯 系 人:陳先生
聯系方式:150-5025-6345
聯系郵箱:C15050256345@163.com
公司地址:上海市沈磚公路5666號臨港科技城B-18F
主要為浦東、閔行、松江、奉賢、金山、青浦、嘉興、嘉善、蘇州、無錫、南通等上海周邊地區客戶提供辦公室裝修、辦公樓裝修設計、廠房裝修設計及工廠鋼結構搭建,無塵凈化車間裝飾裝修服務。